4 D'arblay Street, London | Commercial Office Property | SHB

Leasehold

4 D’arblay Street, London

4 D'arblay Street, London, W1F 8DJ

  • £ per sq. ft

  • 5 - 15 Staff

  • 810 Sq. ft

Townhouse office building in the centre of Soho

The townhouse offices comprise the self-contained upper parts set within an attractive Grade II listed building in the vibrant heart of Soho, surrounded by the area’s extensive range of amenities, including renowned restaurants, cafés, and shops.

The available office floors have been recently refurbished to a high standard, featuring excellent natural light throughout, new carpeting, contemporary spot lighting, and upgraded WC and shower facilities.

Location
Conveniently located, the property is just a short walk from Oxford Circus (Bakerloo, Central & Victoria lines), Piccadilly Circus (Piccadilly & Bakerloo lines), and Tottenham Court Road (Central & Northern lines) underground stations.

Terms

  • Tenure

    Leasehold
  • Lease

    A new lease(s) is available directly from the landlord.
  • Rent

    £ per sq. ft
  • Rates

    £25.00 per sqft
  • Service Charge

    £5.00 per sqft

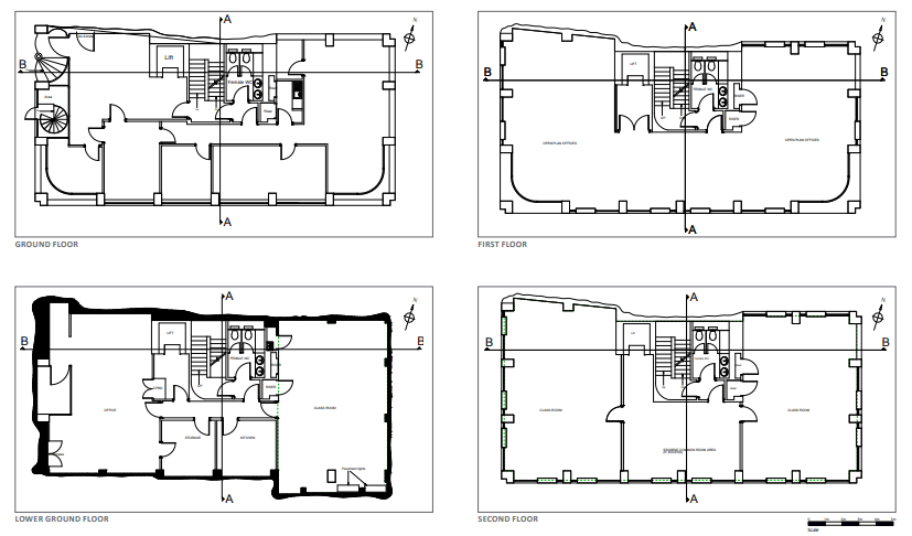
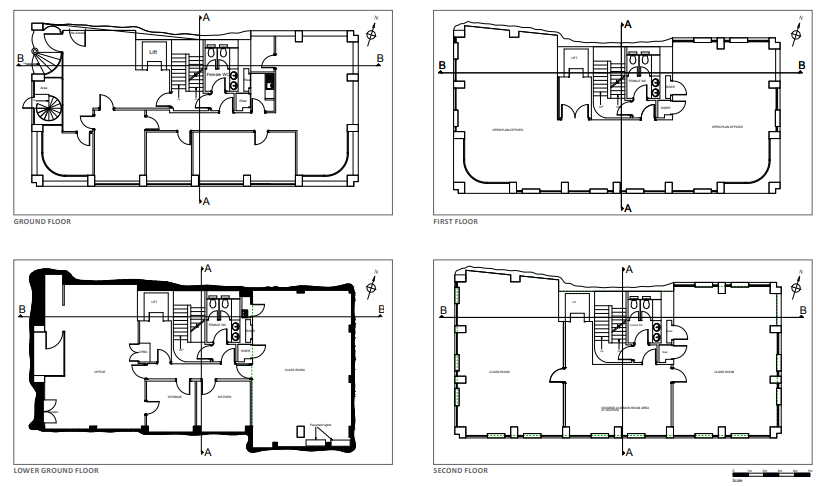
Floors:

  • 3rd

    226 sqft
  • 2nd

    292 sqft
  • 1st

    292 sqft

Transport Links:

  • Oxford Circus - 7 mins walk

  • Leicester Square - 11 mins walk

  • Covent Garden - 16 mins walk

Amenities and Specification:

stdClass Object ( [0] => Kitchen Facilities [1] => Shower Facilities [2] => 24/7 Access )
  • Kitchen Facilities

  • Shower Facilities

  • 24/7 Access

Contacts

Rhys Evans

Ollie Friend

Interested in this property?

Can't find what you are looking for?
Welcome to smartSEARCH. An advanced search tool designed to find you the best available offices. Simply enter a few details and receive a custom report containing all the very latest space (even space that doesn't yet appear on this website)!
What location do you require your office to be in? (Leave blank if any)
How much office space do you require? Enter either staff numbers or Sq Ft.
What is you budget per month (£)?
What amenities do you require?
Thank you for completing smartSEARCH. Please enter your email address below to receive your bespoke report, packed with the very best available offices within the next 48hrs.